宮城県刈田郡蔵王町遠刈田温泉字新地東裏山
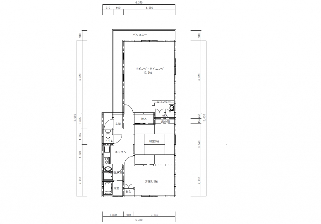
2LDK · 294m² land · 51.52m² building · Built 1974
Elevated due diligence needed
The main risk drivers here are an older seismic code era. Review the hazard panel for local shaking, flood, and fault context before treating the score as investable.
The main risk drivers here are an older seismic code era. Review the hazard panel for local shaking, flood, and fault context before treating the score as investable. The score is deliberately mid-range, so local hazard detail should carry more weight than the headline number.
Well priced relative to similar nearby properties.
Restricted rebuild options, often due to road-access or zoning constraints.
Some amenities are nearby, but a car is still helpful.
Age and condition likely imply heavier renovation work.
Elevated due diligence needed
The main risk drivers here are an older seismic code era. Review the hazard panel for local shaking, flood, and fault context before treating the score as investable.
Built under the pre-1981 seismic code. Japan's 1981 reform materially strengthened earthquake-resistance requirements, so retrofit planning is usually part of due diligence.Estimated retrofit cost: ~¥1.5–2.5M
Loading nearby earthquake history...
Loading nearest mapped fault...
Similar price range in the same area
FairMiyagi Prefecture
¥4,000,000
Miyagi Prefecture
¥4,000,000
FairMiyagi Prefecture
¥4,000,000
宮城県白石市白川津田字越田前
¥4,000,000
FairMiyagi Prefecture
¥4,000,000
Good DealMiyagi Prefecture
¥4,000,000