秋田県能代市向能代字平影野34-3
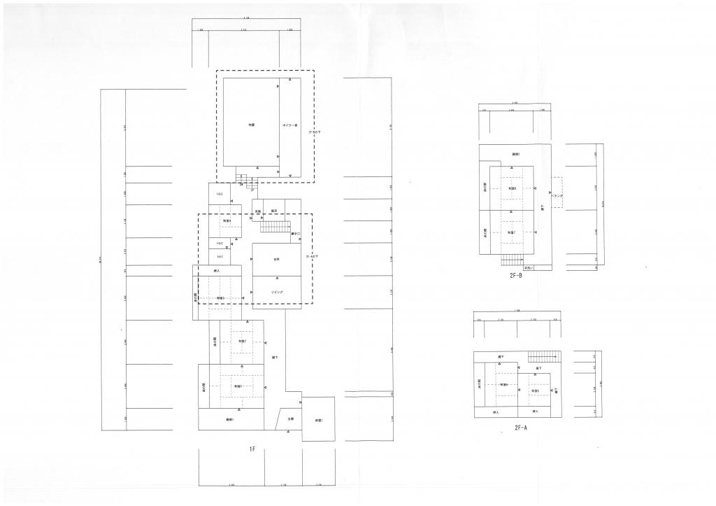
5LDK+2S(納戸) · 762.49m² land · Built 1988
Mixed hazard profile
This listing has a balanced risk picture, with a pre-2000 seismic code era. The detailed hazard panel is where to judge whether those tradeoffs are acceptable for your use case.
This listing has a balanced risk picture, with a pre-2000 seismic code era. The detailed hazard panel is where to judge whether those tradeoffs are acceptable for your use case. The score is deliberately mid-range, so local hazard detail should carry more weight than the headline number.
Well priced relative to similar nearby properties.
Shops, transit, and daily amenities are reachable on foot.
This market is in meaningful population decline, which can pressure services and resale demand.
Age and condition likely imply heavier renovation work.
Mixed hazard profile
This listing has a balanced risk picture, with a pre-2000 seismic code era. The detailed hazard panel is where to judge whether those tradeoffs are acceptable for your use case.
Built under the 1981 reformed seismic code. This is materially stronger than pre-1981 stock, but it predates the 2000 connection and foundation updates.Estimated retrofit cost: ~¥300K–800K
Loading nearby earthquake history...
Loading nearest mapped fault...
Similar price range in the same area