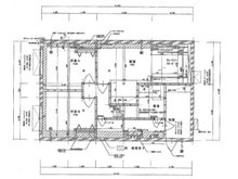
北海道札幌市東区北十一条東1
6LLDDKK · 107.01m² land · Built 1984
Mixed hazard profile
This listing has a balanced risk picture, with a pre-2000 seismic code era. The detailed hazard panel is where to judge whether those tradeoffs are acceptable for your use case.
This listing has a balanced risk picture, with a pre-2000 seismic code era. The detailed hazard panel is where to judge whether those tradeoffs are acceptable for your use case. The score is deliberately mid-range, so local hazard detail should carry more weight than the headline number.
Priced above similar nearby properties.
Some amenities are nearby, but a car is still helpful.
The surrounding municipality looks relatively stable or improving.
Age and condition likely imply heavier renovation work.
Mixed hazard profile
This listing has a balanced risk picture, with a pre-2000 seismic code era. The detailed hazard panel is where to judge whether those tradeoffs are acceptable for your use case.
Built under the 1981 reformed seismic code. This is materially stronger than pre-1981 stock, but it predates the 2000 connection and foundation updates.Estimated retrofit cost: ~¥300K–800K
Loading nearby earthquake history...
Loading nearest mapped fault...
Similar price range in the same area
Hokkaido Prefecture
¥43,800,000
Good Deal北海道札幌市西区西野一条1-3-30
¥43,800,000
北海道札幌市手稲区星置三条9
¥43,800,000
Good Deal北海道札幌市北区新琴似八条11
¥43,800,000
Hokkaido Prefecture
¥43,800,000
Good DealHokkaido Prefecture
¥43,800,000