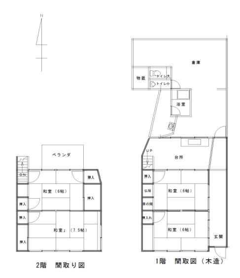
4K · 99.16m² land · 91.19m² building · Built 1958
Elevated due diligence needed
The main risk drivers here are an older seismic code era. Review the hazard panel for local shaking, flood, and fault context before treating the score as investable.
The main risk drivers here are an older seismic code era. Review the hazard panel for local shaking, flood, and fault context before treating the score as investable. The score is deliberately mid-range, so local hazard detail should carry more weight than the headline number.
Price is near the area average.
Restricted rebuild options, often due to road-access or zoning constraints.
Some amenities are nearby, but a car is still helpful.
This market is in meaningful population decline, which can pressure services and resale demand.
Age and condition likely imply heavier renovation work.
Elevated due diligence needed
The main risk drivers here are an older seismic code era. Review the hazard panel for local shaking, flood, and fault context before treating the score as investable.
Built under the pre-1981 seismic code. Japan's 1981 reform materially strengthened earthquake-resistance requirements, so retrofit planning is usually part of due diligence.Estimated retrofit cost: ~¥1.5–2.5M
Loading nearby earthquake history...
Loading nearest mapped fault...