Elevated due diligence needed
The main risk drivers here are an older seismic code era. Review the hazard panel for local shaking, flood, and fault context before treating the score as investable.
The main risk drivers here are an older seismic code era. Review the hazard panel for local shaking, flood, and fault context before treating the score as investable. The score is deliberately mid-range, so local hazard detail should carry more weight than the headline number.
Well priced relative to similar nearby properties.
Restricted rebuild options, often due to road-access or zoning constraints.
Shops, transit, and daily amenities are reachable on foot.
The area shows some demographic softness, but not a collapse signal.
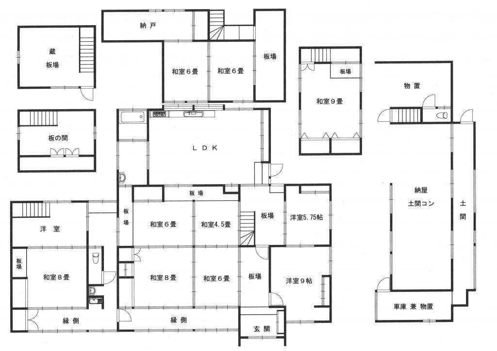
Age and condition likely imply heavier renovation work.
Elevated due diligence needed
The main risk drivers here are an older seismic code era. Review the hazard panel for local shaking, flood, and fault context before treating the score as investable.
Built before Japan's Building Standards Law (1950). Structural behavior in strong shaking is highly uncertain and a full assessment is recommended.
Loading nearby earthquake history...
Loading nearest mapped fault...
Similar price range in the same area